ARCHILLA / PEÑALVER arquitectos

   
  <<< HOME .......... <<< WORKS    
LOOKING AFRICA DWELLINGS
 
MAIN ARCHITECTURAL WORK
 
 
...............................................................................................................................................................................................................................................................................................................................................................................................................................................
........................................................................................................
 
...in the office...
   

................................. .................................

 

 

 

  NEWS !!!..
  PROFILE.._
  CV
 

CONTACT

  PUBLICATIONS
 
WORKS ...
  ___________________________
 
PERIPHERAL WORK
 
...out of the office...
  FAMILY SURF HOUSE. Family Surf House
  ART <>
 

TEACHING

  MANATUNG .
   
   
   
  ___________________________
 
 

________________________

work:
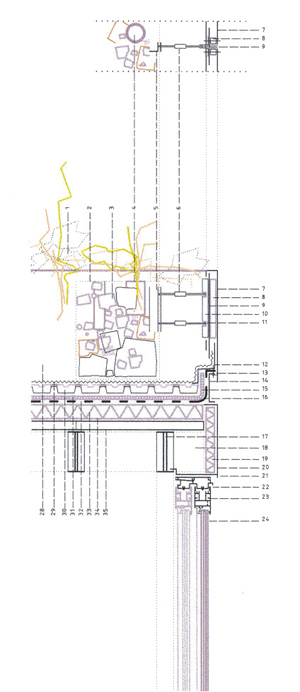
LOOKING AFRICA DWELLINGS
 
item:
PROJECT WITH PRIZES IN DIVERSE COMPETITIONS
 
date:
OCTOBER 2002
 
site:
TARIFA. CÁDIZ. SPAIN
 
prizes:
HONORABLE MENTION. PASAJES-IGUZZINI CONTEST
 
team:
DAVID ARCHILLA
COVADONGA M-PEÑALVER
________________________

 

 

 

 

 

 

 

 

 

 

 

 

 

 

 

 

 

 

 

 

 

 

 

 

 

   
        DAVID ARCHILLA. ARTE CONTEMPORÁNEO. ARTISTA VISUAL. CONTEMPORARY ART. VISUAL ART